Menu:
Haiti 2010 – 2016
+ Pourquoi et Quand-Même
Montessori globale
Montessori en Afrique
+ A. M. Internationale EsF
VISION d’UN Monde
+ Problèmes du monde
La Spirale
une vision de la vie
Structure de la
Foundation Peter Hesse
+ publications + finances
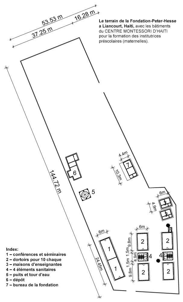
En Janvier 2013 nous espérons de pouvoir recommencer avec la formation intense de futures institutrices Montessori avec une quarantaine d’étudiantes vivant dans ce centre ainsi qu’une vingtaine d’étudiantes venant de la région sans y dormir.
Depuis le séisme du Janvier 2010 un relativement grand nombre d’écoles ont été réparé ou construit – mais sans enseignants une école est seulement un bâtiment.



Dès Janvier 40 étudiantes commenceront leurs études d’un an en résidence au centre ainsi qu’une vingtaine venant des environs.
Dans les longues vacances d’été en Haïti le centre peut être très util pour des réunions des organisations travaillant en Haïti. Cela va cofinancer les frais quotidiens du centre.
Peter Hesse – p.hesse@solidarity.org – 26 Novembre 2012


Fondation-Peter-Hesse, Düsseldorf
in Bürogemeinschaft mit
W. P. Schmitz-Stiftungen
Volmerswerther Str. 86
D-40221 Düsseldorf
Tel: +49 (0)211-39-83-770
E-Mail: p.hesse@solidarity.org